1. Accueil
  2. Étude de conception
  3. CLEAN ELEC - CONCEPTION Divers en Haute-Garonne (31)
Retour

CLEAN ELEC - CONCEPTION Divers en Haute-Garonne (31)

BE / ARCHIS / PROMOTEURS

Marché : CONSTRUCTION et/ou RENOVATION d’établissement scolaires, musées, bâtiments de bureaux, logements, gymnases, hôpitaux/clinique, maison médicale, EHPAD, IME, Entrepôts, locaux commerciaux, salles multi-activité/socio-culturelle, hôtel, entrepôts industriels

Lieu : Occitanie (31-32-82-81-09-33).

Superficies : de 600m² à 10 000m²

Mission : Conception de la phase DIAG au OPR

Montant des Travaux : de 30 000€ à 1 300 000€

Montant des études : 2 000€ à 70 000€

Responsable CLEAN ELEC : M. FRISON Charles

Vous recherchez un bureau d'étude pour la réalisation de votre étude avant-projet en ELECTRICITE ou CVC et PLOMBERIE ?

Nous avons aidé différentes collectivités, associations, SCI, bureaux d’études nationaux, promoteurs immobiliers à réaliser leurs projets de construction et de rénovation avec ou sans extension dans différentes villes d’Occitanie.

  • Pour cela nous avons tout d’abord réalisé des réunions techniques afin de comprendre le besoin des utilisateurs et d’analyser leurs programmes.

A l’issue de ces réunions, des solutions techniques ont été discutées.

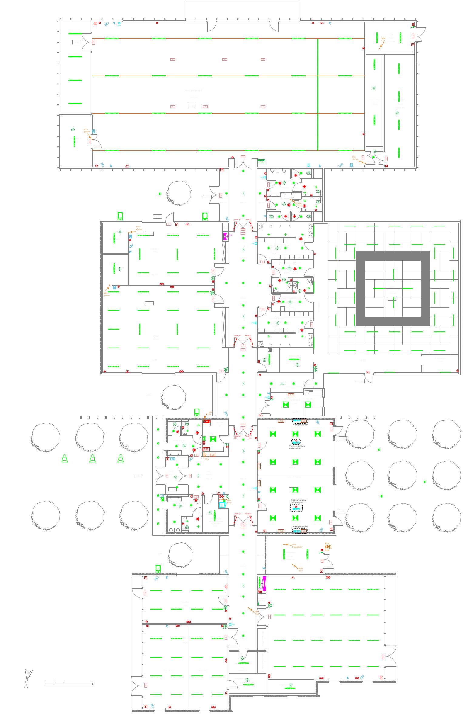
Les principaux locaux sont :

  • Locaux techniques,
  • Locaux de services tel que stockage, archives, rangements, ménage
  • Sanitaires, vestiaires, douches
  • Bureaux
  • Chambres médicalises
  • Salles opérations / scanner / radiologie / réanimations / dialyse / maternité / soin intensif / urgences
  • Bureaux médicaux généralistes ou spécialisés / kinésithérapie
  • Entrepôts / rayonnage
  • Salles de classes et de TP
  • Dortoirs
  • Logements du studio à la villa
  • Parking ouvert et couvert
  • Salle de sport, piscine, dojo, multisports
  • Data Center
  • Cuisine / restauration
  • Dégagements horizontaux et verticaux

Les domaines abordés :

  • Alimentation générale depuis les tarifs bleue jusqu’au tarif vert avec transformateurs privés
  • Délestage avec/sans optimiseur d’énergie
  • Onduleur
  • Groupe électrogène
  • Armoires principale et divisionnaires électriques
  • Distribution et cheminements
  • Equipements Eclairage, appareillage
  • Eclairage de sécurité
  • Sécurité incendie
  • Précâblage téléphone / informatique
  • Sécurité intrusion
  • Visiophonie et Contrôle d’accès
  • Sonnerie de fin de cours, PPMS et distribution de l’heure
  • Sonorisation événementielle
  • Appel malade
  • Anti-rapt nourrisson
  • Vidéo-surveillance

2) Dès lors nous avons fait des propositions de matériel et d’implantation des équipements

Une étude budgétaire a été menée en parallèle afin de respecter le budget initialement défini pour les travaux

La complexité des dossiers a été de faire correspondre les besoins des utilisateurs et le budget défini avant notre intervention. 

3) Nous avons ensuite fait :

  • L’estimation des travaux
  • Les notices des phases APS / APD / PRO /DCE
  • Mais aussi les phases DET / OPR
  • Les pièces graphiques pour l’ensemble des phases (plans et synoptiques)

Nous avons ensuite réalisé :

  • Assistance technique pendant la phase travaux

Nous avons réalisé en cours de chantier :

  • Le suivi de chantier

En fin de chantier :

Dès que les travaux sont terminés, nous réalisons :

  • Les OPR (Opération Préalable à la Réception) et levée de réserves
  • La réception des travaux en présence du directeur de l’établissement et des utilisateurs

 

En conclusion :

Notre bureau d’études est capable de vous aider et vous conseiller sur tous les types de bâtiments et dans tous les domaines électriques et CVC.

 Notre équipe vous accompagne pendant toute la durée des opérations d’études et de chantiers. Notre localisation nous permet d’être réactif et notre organisation rend nos équipes disponibles lorsque vous avez besoin de soutien.

Nos clients nous font confiance depuis plusieurs années et nous continuons de les suivre dans toutes les circonstances et quel que soit leur lieu de travail.

 

Vous aussi, confiez-nous vos études sur la région Toulousaine ou partout en France afin :

 

  • D’optimiser vos réalisations.
  • De dégager du temps pour vos équipes afin qu’elles se concentrent sur l’encadrement du chantier et des équipes sur le terrain et de la gestion financière.

 

En forfaitisant vos études à CLEAN ELEC vous en maitriserez les coûts.

 

Le fonctionnement est très simple et rapide :


1) Remplissez le Formulaire ci-dessous.

Et envoyez-nous votre projet sous format dématérialisé en pièce jointe en nous précisant vos délais et vos coordonnées.


2) Vous recevrez 1 appel dans la journée pour confirmer notre intérêt pour votre projet


3) vous recevrez 1 devis sous 24h par mail pour la réalisation de cette prestation.




C'est moi même M. Frison Dirigeant de CLEAN ELEC qui suivrai votre dossier avec l'aide de mes collaborateurs M. DULAS et M. TRICOIRE.

Je vous ferai bénéficier de mes 31 ans d'expérience en études d’exécution et de conception

 

N'hésitez plus,

Envoyez-moi votre dossier.

Ou si vous préférez un premier contact téléphonique

Appelez-moi au 05-40-24-63-31 (faites le choix 2)

Charles FRISON

Partager :
Nous écrire
Les champs indiqués par un astérisque (*) sont obligatoires
À découvrir
Etude conception réalisation électricité CVC Hopital Joseph Ducuing à Toulouse

Poste Hopital DUCOING - Réalisation des études avant-projet électriques pour le Remplacement du poste HT/BT/GE et des Groupes Froid de l’hôpital DUCUING à Toulouse pour le compte de l’hôpital

Vous recherchez un bureau d'étude pour la réalisation de votre étude avant-projet ?L’hôpital DUCUING nous a confié son étude avant-projet Sécurisation de la production d’énergie ELEC et Froid via la société DALKIA qui doit réaliser les travaux. La société DALKIA a proposé à l’hôpital DUCOING une ...
En savoir plus
Etudes de conception courants forts et courants faibles du Campus 3 siège social AIRBUS à Blagnac (31)

Siège social d' AIRBUS - Etude de conception CFO et CFA du siège social d'AIRBUS- Campus 3 à Blagnac (31)

Vous recherchez un bureau d'étude pour la réalisation de votre étude avant-projet ?Nous avons aidé notre client WSP à réaliser son avant-projet de construction du Campus 3 à Blagnac. Ceci a été possible car notre bureau d’étude à commencé à sa création en 1998 par de l’étude d’exécution avec l’ex...
En savoir plus
Etudes et plans électriques d'un collège sur la région Toulousaine (31) et Tarn et Garonne (82

Collège DIEUPENTALE – Etudes de conception pour la Construction d’un collège privé avec internat à Dieupentale Tarn et Garonne (82)

Nous avons accompagné SOCOTRAP et CLIMATER dans la conception et le suivi des installations électriques pour la construction d’un collège privé avec internat. De l’analyse des besoins jusqu’à la réception des travaux, notre mission a couvert les études techniques, le choix des équipements, l’optimisation budgétaire, les plans d’exécution, et l’assistance chantier. Un projet complet, alliant performance, fonctionnalité et maîtrise des coûts.
En savoir plus
+ 25 ans d'expérience
+ 25 ans d'expérience
Bureaux d'études et de conseils
Bureaux d'études et de conseils
Exécution / relevés / études
Exécution / relevés / études
Intervention en France et DOM-TOM
Intervention en France et DOM-TOM